
集團生產的Z540H、Z540Y、Z540W 型 PN16~PN160 鋼制錐齒輪傳動楔式閘閥:錐齒輪驅動、法蘭連接、明桿楔式彈性閘板,閥座密封面材料為堆焊合金(Z540H-16C~160 Z540Y-16C~160 Z540Y-16I~160I Z540Y-16P~160P Z540Y-16R~160R)、不銹鋼(Z540W-16P~160P Z540W-16R~160R),公稱壓力 PN16~PN160,閥體材料為碳素鋼(Z540H-16C~160 Z540Y-16C~160)、鉻鉬合金鋼(Z540Y-16I~160I)、不銹鋼(Z540W-16P~160P Z540Y-16P~160P Z540W-16R~160R Z540Y-16R~160R)的閘閥。
【產品用途】
集團生產的Z540H、Z540Y、Z540W 型 PN16~PN160 鋼制錐齒輪傳動楔式閘閥:錐齒輪驅動、法蘭連接、明桿楔式彈性閘板,閥座密封面材料為堆焊合金(Z540H-16C~160 Z540Y-16C~160 Z540Y-16I~160I Z540Y-16P~160P Z540Y-16R~160R)、不銹鋼(Z540W-16P~160P Z540W-16R~160R),公稱壓力 PN16~PN160,閥體材料為碳素鋼(Z540H-16C~160 Z540Y-16C~160)、鉻鉬合金鋼(Z540Y-16I~160I)、不銹鋼(Z540W-16P~160P Z540Y-16P~160P Z540W-16R~160R Z540Y-16R~160R)的閘閥。
【性能參數】
|
型號 |
PN |
工作壓力/MPa |
使用溫度/℃ |
適用介質 |
|
Z540H-16C-160 |
16-160 |
1.6-16.0 |
≤425 |
水、蒸汽、油品 |
|
Z540Y-16C-160 |
16-160 |
1.6-16.0 |
≤425 |
水、蒸汽、油品 |
|
Z540H-16I-160 |
16-160 |
1.6-16.0 |
≤550 |
蒸汽、油品 |
|
Z540W-16P-40P |
16-40 |
1.6-4.0 |
≤150 |
腐蝕性介質 |
|
Z540Y-16P-160P |
16-160 |
1.6-16.0 |
≤150 |
腐蝕性介質 |
|
Z540W-16R-40R |
16-40 |
1.6-4.0 |
≤150 |
腐蝕性介質 |
|
Z540Y-16R-160R |
16-160 |
1.6-16.0 |
≤150 |
腐蝕性介質 |
【主要零件材料】
|
型號 |
材料 |
|||
|
閥體、閥蓋、閘板 |
閥桿 |
密封面 |
填料 |
|
|
Z540H-16C-160 |
碳素鋼 |
鉻不銹鋼 |
堆焊鐵基合金 |
柔性石墨 |
|
Z540Y-16C-160 |
碳素鋼 |
鉻不銹鋼 |
堆焊硬質合金 |
柔性石墨 |
|
Z540H-16I-160 |
鉻鉬鋼 |
鉻鉬鋼 |
堆焊硬質合金 |
石墨盤根 |
|
Z540W-16P-40P |
鉻鎳鉬鈦不銹鋼 |
鉻鎳鉬鈦不銹鋼 |
堆焊硬質合金 |
聚四氟乙烯 |
|
Z540Y-16P-160P |
鉻鎳鉬鈦不銹鋼 |
鉻鎳鉬鈦不銹鋼 |
堆焊硬質合金 |
聚四氟乙烯 |
|
Z540W-16R-40R |
鉻鎳鉬鈦不銹鋼 |
鉻鎳鉬鈦不銹鋼 |
堆焊硬質合金 |
聚四氟乙烯 |
|
Z540Y-16R-160R |
鉻鎳鉬鈦不銹鋼 |
鉻鎳鉬鈦不銹鋼 |
堆焊硬質合金 |
聚四氟乙烯 |
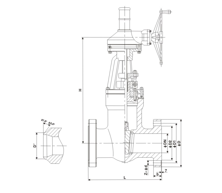
【主要外形和連接尺寸】
|
公稱通徑 |
主要外形尺寸和連接尺寸 |
|||||||
|
L |
D |
D1 |
D2 |
b |
Z-d |
H |
||
|
Z540H-16C |
||||||||
|
200 |
400 |
335 |
295 |
265 |
26-3 |
12-Φ23 |
730 |
|
|
250 |
450 |
405 |
355 |
320 |
30-3 |
12-Φ25 |
897 |
|
|
300 |
500 |
460 |
410 |
375 |
30-3 |
12-Φ25 |
1032 |
|
|
350 |
550 |
520 |
470 |
435 |
34-4 |
16-Φ25 |
1170 |
|
|
400 |
600 |
580 |
525 |
485 |
36-4 |
16-Φ30 |
1330 |
|
|
450 |
650 |
640 |
585 |
545 |
40-4 |
20-Φ30 |
1541 |
|
|
500 |
700 |
705 |
650 |
608 |
44-4 |
20-Φ34 |
1676 |
|
|
600 |
800 |
840 |
770 |
718 |
48-5 |
20-Φ36 |
1874 |
|
|
700 |
900 |
910 |
840 |
788 |
50-5 |
24-Φ36 |
2083 |
|
|
800 |
1000 |
1020 |
950 |
898 |
52-5 |
24-Φ41 |
2400 |
|
|
Z540H-25 |
||||||||
|
200 |
400 |
360 |
310 |
278 |
34-3 |
12-Φ25 |
730 |
|
|
250 |
450 |
425 |
370 |
332 |
36-3 |
12-Φ30 |
897 |
|
|
300 |
500 |
485 |
430 |
390 |
40-4 |
16-Φ30 |
1032 |
|
|
350 |
550 |
550 |
490 |
448 |
44-4 |
16-Φ34 |
1170 |
|
|
400 |
600 |
610 |
550 |
505 |
48-4 |
16-Φ34 |
1330 |
|
|
450 |
650 |
660 |
600 |
555 |
50-4 |
20-Φ34 |
1541 |
|
|
500 |
700 |
730 |
660 |
610 |
52-4 |
20-Φ36 |
1676 |
|
|
600 |
800 |
840 |
770 |
718 |
56-5 |
20-Φ41 |
1874 |
|
|
700 |
900 |
955 |
875 |
815 |
60-5 |
24-Φ42 |
2083 |
|
|
800 |
1000 |
1070 |
990 |
930 |
64-5 |
24-Φ48 |
2400 |
|
【結構圖片】

